Modernes Bad mit wandhängendem WC, ebenerdiger Glasdusche, großem weißen Aufsatzwaschbecken und Holzmöbeln in warmer Maserung.

Zwei Etagen, zwei Traumbäder – moderne Badmodernisierung

In diesem Projekt durfte das Team von Alwin Christians gleich zwei Bäder vollständig modernisieren. Für unsere Kunden verwandelten wir sowohl das Bad im Erdgeschoss als auch im Obergeschoss in stilvolle, durchdachte Wohlfühlräume mit bodengleicher Dusche, Dusch-WC und präziser Ausführung bis ins kleinste Detail. Entstanden sind zwei stilvolle, funktionale Bäder, die Design und Komfort perfekt verbinden. Unsere Kunden waren wunschlos glücklich.

„Sehr professionelle Beratung mit 3D-Design, sehr professionelle Ausführung vom Aufmaß bis zum fertigen Bad!“

- Statement des Kunden

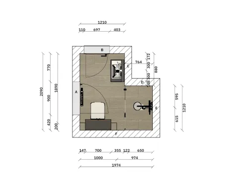
Platzwunder-Bad im EG

Der neu geplante Grundriss des Erdgeschossbades zeigt eine optimale Raumausnutzung auf sehr kleiner Fläche. Besonders wichtig war der Einbau eines Dusch-WCs sowie einer möglichst großen, bodengleichen Dusche. Durch präzise Planung konnte jeder Zentimeter funktional genutzt und das Bad offen und komfortabel gestaltet werden.

Technische Grundrisszeichnung eines Badezimmers mit maßstabsgerechten Wandmaßen und eingezeichneten Sanitärobjekten.
Modernes Bad mit wandhängendem WC, ebenerdiger Glasdusche, großem weißen Aufsatzwaschbecken und Holzmöbeln in warmer Maserung.

Modernes, funktionales Bad auf kleinster Fläche

Das fertig umgesetzte Bad im Erdgeschoss überzeugt durch seine moderne Gestaltung und intelligente Raumaufteilung. Die bodengleiche Dusche bringt Großzügigkeit, das integrierte Dusch-WC zusätzlichen Komfort. Besonders hervorzuheben: die flächenbündigen Wandverkleidungsplatten, die für ein ruhiges, hochwertiges Gesamtbild sorgen.

Warmes Holz trifft klare Formen

Die markante Holzfront des Waschtischs setzt einen warmen Akzent im modernen Grau-Konzept des Badezimmers. Die natürliche Maserung bringt Lebendigkeit und Tiefe in den kompakten Raum.

Nahaufnahme eines modernen Waschtischs mit weißem Aufsatzbecken, schwarz-matter Armatur und Front in natürlicher Holzoptik.
Detailaufnahme einer bodengleichen, gefliesten Dusche mit mittigem quadratischem Bodenablauf und dunkelgrauen Wandflächen.

Dezenter Ablauf, starke Wirkung

Der elegante, quadratische Bodenablauf unterstreicht die klare Linienführung und sorgt gleichzeitig für eine effiziente Entwässerung. Ein technisches Detail, das optisch kaum auffällt, aber täglich spürbaren Komfort bietet.

Bild
ICON Skizze eines Grundrisses.

Kleiner Raum, große Wirkung

Optimierte Raumnutzung durch millimetergenaue Planung.

Bild
ICON das drei schwarze, unterschiedlich große Sterne zeigt.

Moderner & reduzierter Stil

Klares Design in Grautönen mit harmonischen Materialflächen.

Bild
ICON leuchtende Glühbirne

Besonderheiten & Raumsparlösung

Dusch-WC, bodengleiche Dusche, flächenbündige Platten.

Komfort-Bad im OG

Das Obergeschossbad bietet mehr Fläche, die genutzt wurde, um klare Funktionsbereiche zu schaffen: großzügiger Duschbereich, ausreichend Stauraum und ein harmonisches Raumgefühl. Die Planung legt Wert auf moderne Linien, Offenheit und ein abgestimmtes Materialkonzept.

Grundriss eines modernen Badezimmers mit Duschbereich, Waschtisch, WC und maßgenauen Raumabmessungen.
Großer Duschbereich mit Glasabtrennung, dunkler Wandverkleidung und Duschwanne; daneben ein Hochschrank in markanter Holzoptik sowie ein Fenster mit breiter Laibung.

Stilvolles Bad mit modernem Materialmix

Im Obergeschoss setzt das Bad auf eine moderne Kombination aus Steinoptik und warmen Holzfronten. Die großzügige Glasdusche verleiht dem Raum Offenheit, während hochwertige Schrankelemente Struktur und Stauraum bieten. Das Ergebnis ist ein elegantes, ruhiges Badezimmer mit hohem Wohlfühlfaktor.

Harmonie aus Steinoptik und Holz

Die Kombination aus großformatigen Wandfliesen und warmen Holzfronten schafft auch im Obergeschoss ein ruhiges, modernes Raumambiente. Die Materialien wurden so gewählt, dass sie miteinander verschmelzen und ein harmonisches Gesamtbild erzeugen.

Modernes Badezimmer im Obergeschoss mit wandhängendem WC, Waschtischmöbel in Holzoptik, großem Spiegelschrank, grauen Feinsteinzeugfliesen und seitlichem Designheizkörper.
Bild
ICON Skizze eines Grundrisses.

Großzügig & gut strukturiert

Raumaufteilung mit klaren Zonen für entspanntes Bewegen.

Bild
ICON das drei schwarze, unterschiedlich große Sterne zeigt.

Warm-moderner Materialmix

Grautöne, Holzdetails und ruhige Linienführung.

Bild
ICON leuchtende Glühbirne

Besonderheiten & Stauraum

Glasdusche, hochwertige Möbel und durchdachte Stauraumlösungen.

Kontaktieren Sie uns
Ihr Weg zum neuen Bad
Sie möchten Ihr Badezimmer modernisieren? Wir beraten Sie gern. Rufen Sie uns einfach an oder schicken Sie uns eine Online-Anfrage:
Badezimmer-Anfrage
Badexperte Alwin Chrisitans vor neutralem Hintergrund.
Das könnte Sie auch interessieren

Weitere Informationen zum Thema Badrenovierung finden Sie hier: 

Helles Premium-Badezimmer mit gemusterten Fliesen von der Firma Dreyer.
Ihr Weg zum Traumbad

Ob Beratung, Planung, die Erstellung eines individuellen Raumplanungskonzeptes oder letztlich die Installation des Bades, wir kümmern uns um die fachgerechte Umsetzung Ihres Traumbads.

Ablauf Badumbau
Badexpertin bei der Badplanung am Tablet.
Bad­pla­nung vom Pro­fi

Unsere Badexperten erstellen Pläne, auf deren Grundlage das Bad ganzheitlich gestaltet werden kann. Am Ende steht ein Bad, das niemals von der Stange ist.

Badplanung
Fotomontage mit Preisschildern für die drei Budgetklassen für das Badezimmer.
Was ko­stet ein Ba­de­zim­mer?

Jetzt erfahren, was sich hinter Begriffen wie Economy-Bad, Komfort-Bad oder Premium-Bad verbirgt und was das für Ihre Budgetplanung bedeutet.

Badkosten